Noida Luxury Real Estate Logo Noida Luxury Animated Logo
Enquire Now

Office — 855 Sq.ft (Lease)

Premium lockable office at Supernova Astralis, Sector 94 Noida. Grade-A building — Ready To Move, High-speed lifts & Modern MEP.
+21

Pricing Details

Rent₹ 75,000
Monthly Maintenance₹ Nil
Total Price₹ ₹ 75,000
First Month Charges
Monthly Charges₹ 75,000
Security Deposit₹ 150,000
Booking Amount₹ 25,000
Total First Month Charges₹ 2,25,000

Brokerage and Electricity charges are not included

Posted by
Chandradeep Sharma


Highlights

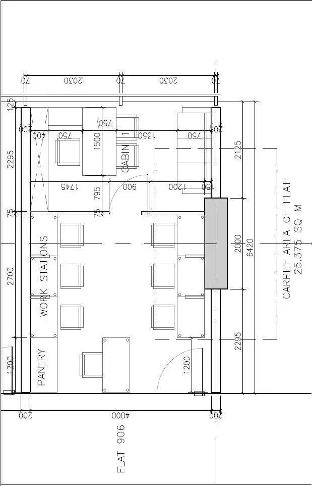
Carpet Area
514 Sq.ft
Saleable Area
855 Sq.ft
Ceiling Height
10.5 ft
Private Cabins
1–2 Cabins
Workstations
6–15 Seats
Pantry
1 Pantry
Reception Area
1 Reception
Conference Room
1 Room

Property Details

Office Layout1-2 Cabin, 6-15 Workstation, 1 Parking
Property AgeLess than a year old
Furnished Type Furnished
FacingNorth-East Facing
Flooring Typevitrified Tile Flooring
Built-up Area855 Sq. ft.
Covered Parking1
Floors11 of 28
Preferred TenantsCorporate

Furnished With

1 Excutive Table
15 Workstation
Overhead Storage
Centralized AC Unit
21 Executive Chairs
1 Reception Sofa
6 Lights

Amenities

8+ High-Speed Lifts, Service Lifts, Podium Retail Reserved Parking Mahamaya Flyover — 2 mins, DLF Mall of India — 7 mins 24x7 Security and CCTV Metro Station — Okhla Bird Sanctuary

Description

Designed for flexible workspace planning, the property offers high-speed lifts, central air-conditioning, and a well-managed business ecosystem — ideal for startups, corporate offices, and professionals.

Its Grade-A infrastructure, ample parking, and excellent connectivity make it one of the most desirable commercial office spaces for lease in Noida.


Location Details

Address

Branch Office: Unit No. 1146, Supernova Astralis, Sector-94, Noida, Uttar Pradesh-201301

Phone

+91 9717288533

Email

noidaluxury@gmail.com

Working Hours

Monday – Sunday
10:00 AM - 7:00 PM

Leave Your Details Here